的冲突文件 2022-05-09 18-43-35-94_20240927155355341.gif)
盛一的营业担当吴同学的家装修记录又来啦,上一篇指路→吴同学家二次采寸,回收工资物有所值!
前期过程还是十分顺利的,拆完旧,采完寸,也确认好了设计方案。
不过在施工签约前还有着不少环节。
→定主材、深化图纸
Tips:您可以在我们的展厅里尽情挑选喜欢的商品,设计师会将您的选择汇总位《商品提案》,彩色印刷方便您确认提案中的商品是否为自己所选择的。

.png)
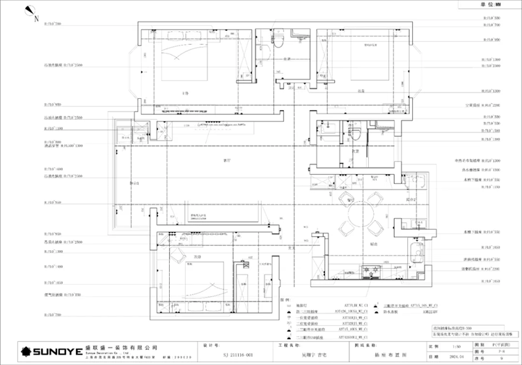
确定主材和辅材后,设计师将着手深化设计图纸。我们把大量精力花在图纸深化上,设计师根据方案制作图纸,配电布置图、给水布置图、地坪节点图、详图等等,巨细靡遗的体现了施工内容。
.png)
→制作预算
Tips:设计师将根据施工图来制作预算,我们率先将闭口合同引入申城,它是如此优秀的装修费用解决方案,以至于很快成为其它装修公司的学习对象。闭口合同能够有效避免预算与决算价差过大、恶性漏项等问题。我们的基础数据库保证每位设计师制作都是统一价。
.png)
→预算图纸审核
Tips:是的,质检部和审核贯穿我们的整个服务流程。规范的制度与切实执行的监督管理保证我们每次拿到您面前的文本及图纸都准确、严谨。如果您觉得当前的预算不符合心理价位,可通过调整产品来调节预算。调整后的预算及图纸也必须提交质检部重审。
.png)
→制作效果图
设计师制作并向您提供照片级效果图,空间不同,张数不同。您家的方案不需要依靠您的想象而是直接展现在您的面前,让您在施工前就能把完工后的效果了然于胸。
.png)
成立着二十年来我们不断优化梳理着我们的流程,为了保障精艺良工,这些流畅严谨的程序都是必要的。
吴同学家是租房在外,每个月承担7k左右的房租,所以我们的设计师也是加班加点为吴同学排忧解难,把进度都尽量往前赶。
.png)
.png)
.png)
吴同学在平时繁忙的工作之余也是硬挤出时间拉着设计师抓紧核对开关插座点位和灯具排布、定制家具深化图纸、定下所有电器,抽出三个半天去宜山路、公司仓库定材料。设计师很配合和耐心地针对吴同学的想法和纠结进行了修改,分析和建议。
.png)
.png)
.png)
.png)
.png)
.png)
.png)
吴同学说下一期会向我们投稿他家的效果图,看看等竣工后是不是1:1落地,我们也是一整个期待了,不见不散!
.png)
.png)
